HVT67 / HVT77
The HVT67 / HVT77 Hidden Leaf System is engineered with a fully concealed sash, achieving a flush, minimalist appearance without compromising structural integrity. Constructed from high-performance aluminum profiles and incorporating advanced thermal insulation technology, it offers superior energy efficiency, smooth operability, and long-term durability—optimized for modern residential and commercial applications.
Get quote

Premium Features

Seamless hardware
Concealed components for a clean, seamless finish.

Thermal barrier
Enhanced insulation with reduced heat transfer.

UV defense
Blocks harmful UV rays to protect interiors.

Storm-ready
Tested to perform in high-wind conditions.

Noise reduction
Reduces noise for a quieter interior.

All-weather sealing
Built to resist rain, snow, and the elements.
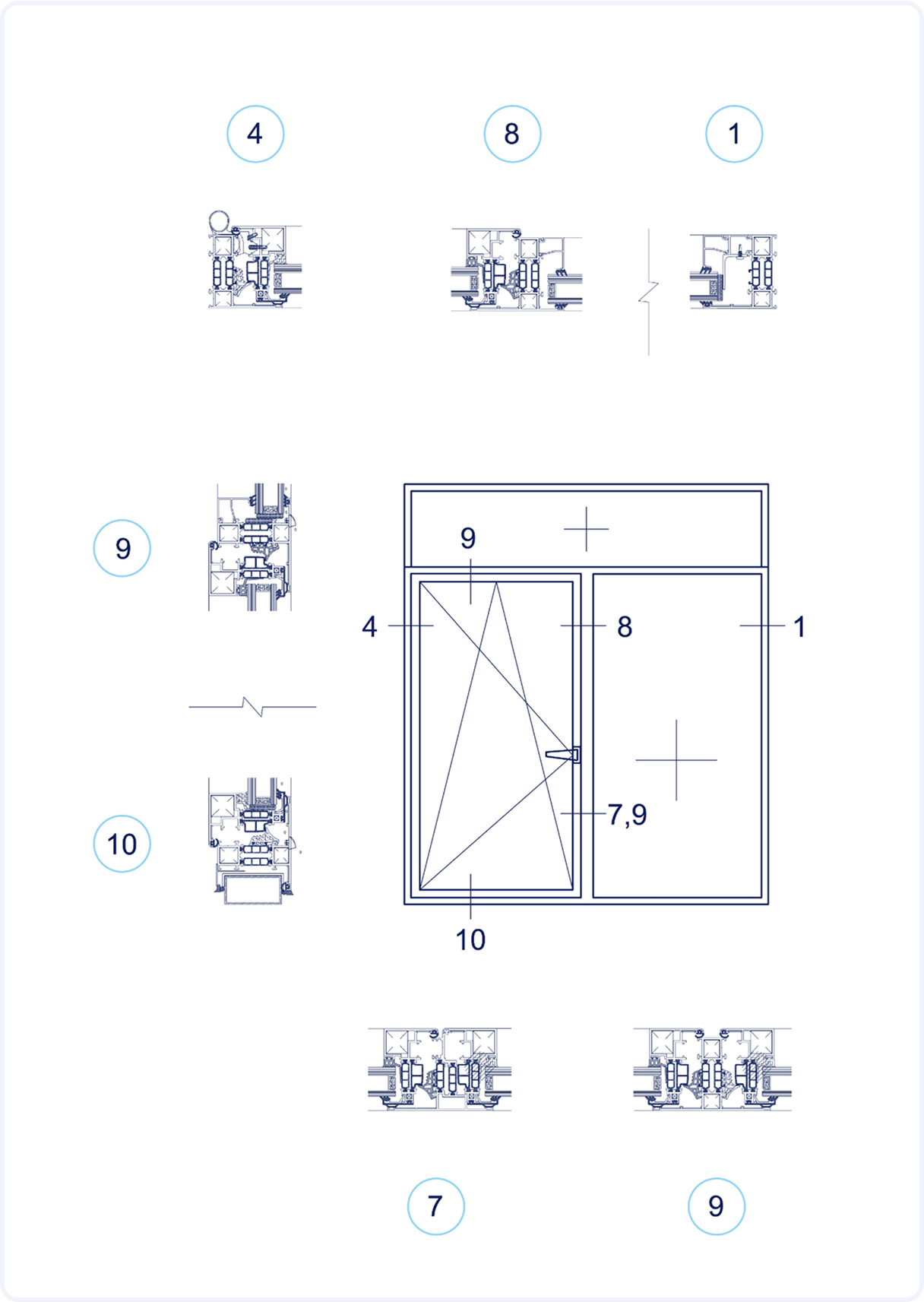
Inside the Frame
Explore the inner structure and key features of HVT67.

Explore the inner structure and key features of HVT77.


Technical Specifications
HVT67 | HVT77 | |
---|---|---|
Frame Width | 2.64 inch | 3.03 inch |
Sash Width | 2.72 inch | 3.09 inch |
Thermal Break | 0.95 inch | 1.34 inch |
Profile Wall Thickness | 0.08 inch | 0.08 inch |
Min. Glazing Thickness | 0.95 inch | 0.95 inch |
Max. Glazing Thickness | 1.02 inch | 1.42 inch |
Max. Sash Dimensions | 51.18 x 110.24 inch | 51.18 x 110.24 inch |
Max. Sash Weight | 286.6 lbs | 286.6 lbs |
EN 12152 Air Permeability | Class 4 (600 Pa) | Class 4 (600 Pa) |
EN 12154 Water Tightness | Class 9A (600 Pa) | Class 9A (600 Pa) |
EN 13830 Wind Resistance | Class C4 (1800 Pa) | Class C4 (1800 Pa) |
Min. Thermal Insulation | Uf: 2,20-2,37 W/(m².K) | Uf: 1,8-2,08 W/(m².K) |
HVT67

Single door

French door

HVT77

Single door

French door

Application Options
- Inward Opening Sash
- Tilt and Turn Opening
- Double Sash Opening
- Outward Opening Sash
- Transom Opening
- Pivot Opening
Glass Specs & Configurations
Discover a range of glass types engineered to meet aesthetic, performance, and safety requirements—each tailored to enhance the design and functionality of your project.
Glass Types
Insulation & Energy Efficiency
Premium Finishes
Choose from our standard color selection or customize your project with any RAL color or wood grain finishes. Our durable, powder-coated aluminum ensures long-lasting performance, weather resistance, and a flawless aesthetic.
9016
White
9006
Aluminum
9005
Jet black
7021
Black gray
8017
Chocolate brown
9001
Cream
7006
Beige gray
7016
Anthracite
7040
Window gray
9403-205
Maple
9403-205
Golden pine
9403-205
Red mahogany

Resources
Let’s Build Your Vision
Tell us about your project, and our team will provide a custom quote tailored to your architectural needs. From initial consultation to final installation, Glass Group delivers precision-engineered glass systems designed to elevate your space.
Stay informed at every stage
✔︎ Track your order
✔︎ Get installation updates
✔︎ Access drawings
✔︎ Submit a ticket
